Appartement meublé en Location à Antony Réf : 429815

Description

Visite O7 81 46 25 O3

A louer appartement meublé F3 de 65 m2 avec parking à Antony

Description
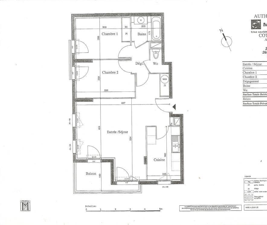
Appartement meublé de type F3 d'une surface de 65 m2, situé au deuxième étage d'une résidence de standing avec ascenseur, accessible aux personnes à mobilité réduite. Le bien est calme, lumineux et bien agencé.
L'entrée dispose d'une penderie et mène à un grand séjour ouvrant sur un balcon exposé Sud Ouest, offrant une belle luminosité tout au long de la journée. La cuisine, spacieuse, est entièrement aménagée et équipée avec réfrigérateur, four, plaques à induction et hotte encastrés.
L'espace nuit, bien séparé, comprend deux chambres avec placards intégrés, une salle de bains et des toilettes séparées avec lave mains. Le chauffage est électrique à inertie bi zone, garantissant un bon confort thermique.
L'appartement bénéficie d'une connexion internet par fibre optique, d'un parking en sous sol ainsi que d'un local vélos et poussettes.
 

Points forts
Résidence de standing avec ascenseur
Appartement accessible aux personnes à mobilité réduite
Balcon exposé Sud Ouest
Cuisine équipée et fonctionnelle
Espace nuit bien séparé avec rangements
Parking en sous sol inclus
Fibre optique
Environnement calme à proximité immédiate des espaces verts, équipements sportifs et établissements scolaires
Accès rapide aux transports RER B et C ainsi qu'à la gare Massy TGV

 

Prix : 1 670 euros HAI dont 0.06% (1 euros) de frais d'agence à la charge de l'acquéreur, soit un prix net vendeur de 1 669 euros.

DPE : C - 100 kWh/m².an
GES : C - 24 kg CO2eq/m².an

Les informations sur les risques auxquels ce bien est exposé sont disponibles sur le site Géorisques : www.georisques.gouv.fr

Référence de l'annonce : 429815

Diagnostics de performance énergétique

Valeur DPE : 100 kWhep/m2.an

Valeur GES : 24 kgeqCO2/m2.an

Offre de financement

1 669 €/mois
  • Superficie :
    65m²
  • Pièces :
    3
  • Chambres :
    2

Informations supplémentaires

Des questions, envie de visiter ?

Vous souhaitez estimer votre bien ?

Notre équipe de professionnels vous fournira, après étude, une estimation gratuite.
Alors n'hésitez pas...